Description
CONBAS Base Mounts are supplied as a complete Left & Right handed set with two brackets fitted to each slide. So order one unit if a pair is required. You can now order as a Locking Slide (Standard) or a Non-Locking Slide (Non-Standard)
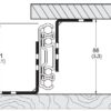
Bracket Configuration C
Supplied as a complete LH & RH set
Container Red fully locking slides are now supplied with a flexible bracket system referred to as CONBAS, allowing them to be used as a highly economical base mount. Supplied with four bracket options fitted to the slides, this is a highly flexible system allowing floor mount, bottom mount or a combination of both.
The brackets are made in four length options which are interchangeable to support all Container Slide lengths up to 1524mm. The brackets can also be purchased separately with a fastenings kit for customer fitting. We have four bracket configurations for mounting: A, B C & D. Each allows the fitter to choose which way to mount the slides. The brackets can be removed and re-positioned as bolts & nuts are used to secure them, not rivets.
CONBAS Mount C provides a bracketry configuration to floor mount the slide in the closed position when space allows. The inner beam bracket is mounted to support a top mount fit, where the drawer sits upon the raised bracket. The slides are supplied as a LH & RH pair with brackets fully fitted and ready to use. For load capacity, datasheets and 3D files, please refer to the 4005.CONRED Container Red slides on our main site HERE.
4005.CONBAS slides are supplied from stock, across all lengths, with fast lead-times.
























Japh –
Can not recommend highly enough
Anonymous –
The units arrived next day as confirmed. Not yet fitted but they look very strong. The support was exceptional, with instant replies throughout the weekend. Will post some images for your blog. Thanks to Colleen