Description
Type: Full extension drawer slide
Material: Stainless steel, grade 441 (1.4509)
Features: Solid Delrin rollers
Mounting: Side mount
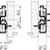
Width: 18mm Load: 68kg per pair
- High lateral stability through specially formed middle profile (material thickness 2mm) & guide rollers
- Cabinet and drawer profiles for screw fastening
- Safety clip mounted in middle profile
- Integrated progressive action provides smooth travel throughout
- Double sided captured profile
- Self-closing, soft stop
- Heat resistant version available up to 110 deg C (50kg loading)
The FR790 SCC slide is available within 7-10 days across all lengths (350-700mm). Sold per PAIR.
Download Datasheet














Reviews
There are no reviews yet.